













Descoperă o casă tip duplex, construită cu accent real pe calitate, eficiență energetică și detalii tehnice, amplasată într-o zonă liniștită din Pipera – Voluntari, pe stradă privată, retrasă de la traficul intens.
🔹 Suprafață utilă: 186 mp
🔹 Teren: 250 mp
🔹 Regim de înălțime: P + 1 + Mansardă
🔹 An finalizare: 2026
🔹 Locuri de parcare: 2
📐 Compartimentare practică și echilibrată
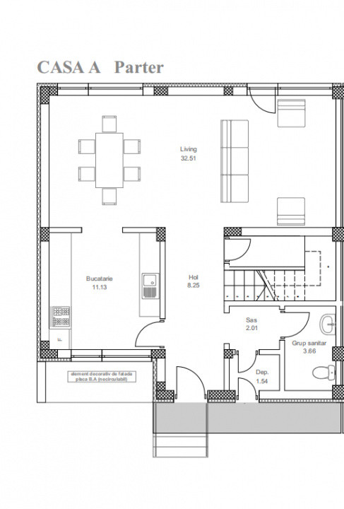
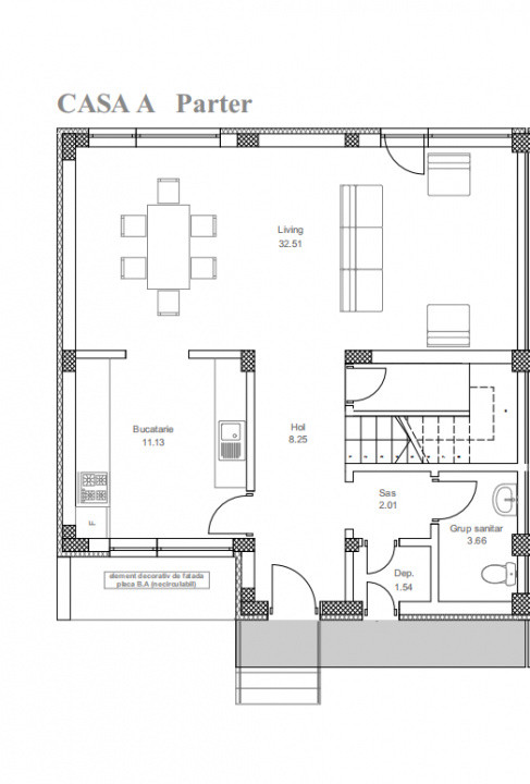
Parter
Hol de acces
Living generos cu zonă de dining
Bucătărie separată
Baie
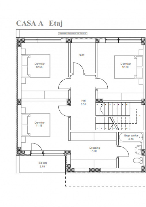
Etaj
3 dormitoare
2 băi (inclusiv dormitor matrimonial)
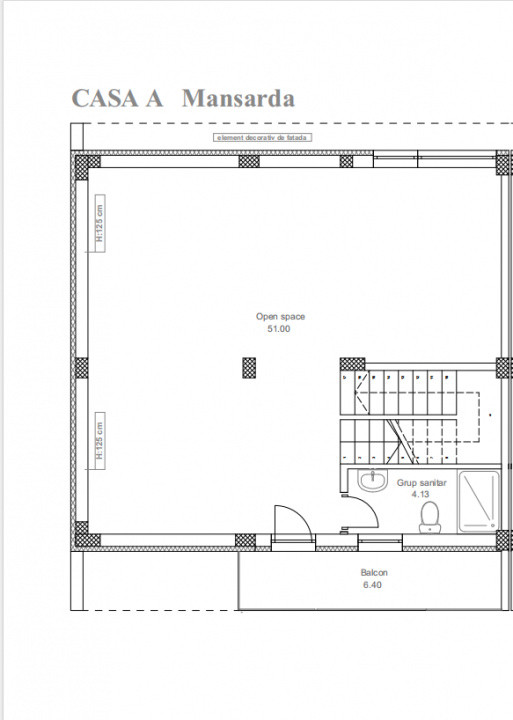
Mansardă
Spațiu open-space (ideal birou, hobby, zonă de relaxare) baie
Exterior
Curte proprie de 250 mp
Terasă
Stradă privată, liniște și intimitate
Acces rapid către zonele de interes din Pipera și nordul Capitalei
⚙️ Detalii tehnice & calitate construcție
✔ Cablu electric CYYF ignifug
✔ Branșament electric 380V
✔ Pregătire pentru pompă de căldură
✔ Izolație exterioară EPS 100 – 15 cm
✔ Certificat de Performanță Energetică – Clasa A
✔ Construcție solidă, bine executată, cu atenție la detalii